
PROJECTS
Flywheel, 2017
Huawei approached us and made it very clear from the start that their new European headquarters had to be both stylish and unconventional, while still keeping true to their Asian heritage. Together with the client’s in-house consultants and our resident architects we were able to complete this project within the estimated time frame.




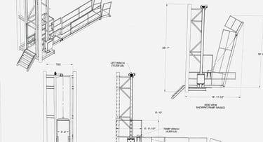
Mississippi River Barge, 2019
The city of Wiesbaden commissioned us to revamp a piece of commercially available but awkwardly shaped land in downtown Wiesbaden to a new conference center. The main requirement for the space was to be modern but flexible so that it could cater to as many different fields as possible.




Automated Tote Drilling Machine, 2020


Our most recent project for Danske Bank was finished months in advance. The bank wanted to establish their German presence in a nonchalant way, while injecting a fresh air of Scandinavian design and color to the surrounding environment. One of the top features of this project remains the intricate main reception hall, with its glass ceiling.
DARWIN INDUSTRIAL SERVICES
Newsletter
Office Contact
If you'd like to know even more about our company you can sign up for our Newsletter here.
